Bonjour,
Nous souhaitons rénover tout notre réseau de plomberie et nous avons besoin de conseil sur le dimensionnement des tuyaux.
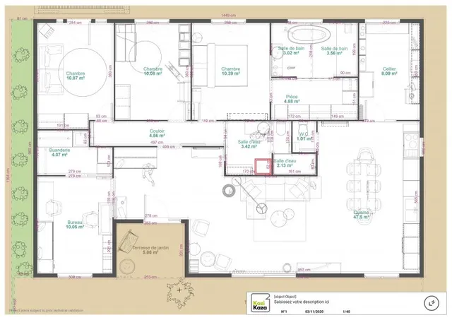
Pour avoir le contexte, la maison est de plain pied d'une surface d'environ 120m².
Sur le plan, la chaudière représentée par un double carré rouge dans la salle d'eau.

Voici ce que nous avons pensé faire :
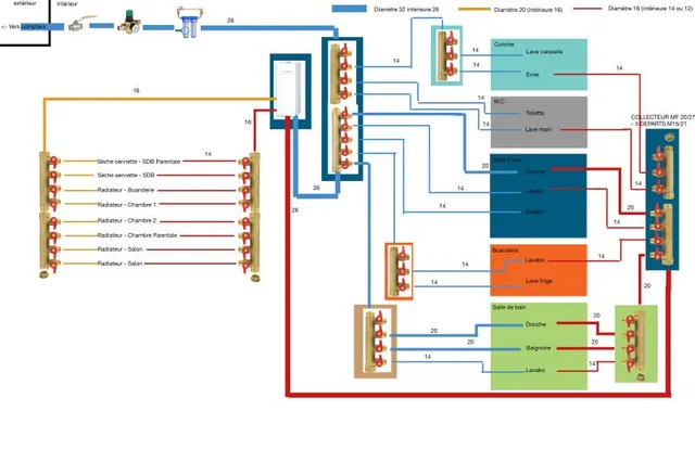
Sur ce plan, chaque carrée de couleur correspond à une pièce du plan ci dessus. Cela permet d'indiquer l'emplacement des nourrices

Pour rappel nous avons besoin de conseil sur le dimensionnement des tuyaux.
Chaque chiffre (sur les tuyauteries) indiquent le diamètre intérieur que l'on voudrait utiliser. Pensez-vous qu'ils sont adaptés à cette installation?
Le collecteur "MF 20/27 - 5 DEPARTS M15/21 M 15 x 21" est-il compatible avec les entrées / sorties de tuyaux que nous envisageons installer ?
Merci pour vos réponses,